案場小檔案
名稱:楠梓蔡公館
風格:現代奢華
屋況:全新預售
坪數:66坪(室內40坪)
風格:輕奢陽光宅
格局:三房兩廳
家庭成員:兩大二小(父母及兩名未婚子女)
工程預算:300萬

當人生邁入下一個階段,居住空間也該跟著升級。本期案例「楠梓蔡公館」是一處40坪的全新預售屋,屋主從無電梯透天換到高樓層大樓,不僅是居住形式的改變,更是對後半人生的「不將就」承諾。這是一個極為特別的專案——這是蔡公館一家人第二次將居住空間託付給我們「叡研」團隊。
從十年前的透天厝,到現在的高雄40坪輕奢宅,不變的是信任,變的是生活型態。如何在這間現代奢華的空間中,為兩位享受「二人世界」的屋主創造出鮮活陽光且大量收納的舒適退休生活?以下是我們的設計概念與經驗分享:
從透天到大樓:重啟「不將就」的人生規劃與設計重點
蔡公館的案例,精準反映了許多家庭在人生階段轉變時的裝修需求。兩位孩子已是大學生,減少了在家時間,讓父母得以將更多心力放在自己的生活品質上。
1. 關鍵轉變:大樓平面空間更舒適
- 屋主痛點: 無電梯透天隨著年紀增長帶來不便。
- 設計解答: 40坪大樓裝潢設計著重於平面空間的高效利用,避免垂直動線的疲勞。確保生活區域集中,為年紀漸長的屋主創造更舒適、無障礙的生活體驗,這也是退休宅設計的關鍵考量。
2. 信任基礎:第二次託付的深層意義
- 叡研與屋主的合作已延續十年,從第一次為國中生打造的透天厝,到這次為成熟父母設計的輕奢陽光宅。這份信任不僅建立在設計能力上,更在於我們能夠深入思考內心深處最貼切的需求,將每一次設計都視為「下一個人生的出發點」。
你也正為了室內裝修煩惱嗎?歡迎直接與我們聊聊👉 [叡研官方LINE ]

屋主訴求
●鮮活陽光的生活空間
●輕奢風
●大量收納空間
一、 陽光、收納與儀式感:現代奢華的空間規劃
本案最大的優勢在於高樓層帶來的充足採光,設計師的任務是如何善用並控制這片光明,同時將屋主需求的大量收納空間隱藏於無形。
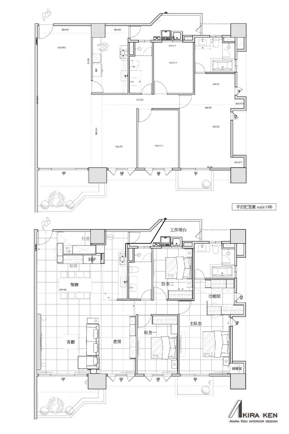
設計師的設計規劃:用隔間與畸零角「爭取」更多坪效
本案的設計重點,在於設計師發揮空間重塑的專業功力。我們不只做櫃體,更透過精準的拆除隔間、新增隔間,以及善用每一個不起眼的畸零角,成功為屋主爭取出更多的生活使用空間,讓這室內40坪發揮出 50坪的坪效。整體居住使用空間動線規劃,是設計之初的重中之重。

二、【玄關】隔絕、收納與空間極大化
- 設計概念: 玄關收納規劃不再只是單純放鞋。我們將入門處的玄關、鞋櫃、電子衣櫥完整整合到同一儲物空間,創造了一個多功能的倉儲空間。
- 專業價值: 有效隔絕裡外衣物,保持室內空間的清潔,是現代高品質生活的體現。入屋安排更衣、雜物、鞋櫃等多功能倉儲空間,徹底解決生活雜物的收納問題。

【客廳/起居】明廳暗室的採光哲學
- 設計概念: 完整保留客廳與居家起居的陽光明媚,實踐「明廳暗室 設計」的原則。
- 細節巧思: 為了消除壁面的厚重感,我們採用壁龕設計,在視覺上創造輕盈感,同時兼具美觀與展示收納功能。壁面增加的小收納儲物格,能將公領域的畸零空間極致利用,有效收納客廳多餘的生活雜務,讓輕奢風裝潢始終保持簡潔俐落。
【廚房/餐廳】通透與實用兼具
- 設計概念: 廚房緊鄰玄關收納間,確保動線流暢不浪費空間。
- 專業價值: 透過玻璃隔斷設計,在日常使用時能隔絕熱炒油煙,但當邀約朋友或家人聚餐時,開啟玻璃門即能擁有通透與寬闊的公共空間,滿足屋主多元的社交需求。

【主臥】畸零空間的極致救援與使用空間釋放
- 設計概念: 充分考量年長屋主的需求,確保臥室能夠靜心休憩。
- 收納極致化: 巧妙運用主臥室中柱體的畸零地,設計師將其轉化為一個可作衣物收納的儲藏室。拉上拉門後,畸零空間完全隱藏,成為平整床頭板的一部分,極大化地釋放了臥室的視覺空間,讓空間感瞬間放大。
- 貼心設計: 雙向開啟的衣櫃不僅實用,更在有限空間內創造出女主人期盼的更衣室效果。冬衣冬被甚至行李箱,都有了妥善的收納空間。
點擊查看完整作品圖:高雄楠梓|鼎宇森林之星 40坪3房2廳2衛

結語:給正在準備新家的你 — 找我們,就是找一份安心感!
這個「輕奢陽光宅」的故事,不只是關於 40 坪的裝潢,更是關於信任的延續。蔡公館的屋主信任我們,把他們人生下一階段的家,再一次託付給叡研,這是我們最大的驕傲。
我們用專業的設計功力,不只幫屋主把收納做滿,更透過隔間的巧思和畸零角的利用,實實在在地幫他們「變出」更多生活空間。因為我們知道,家,就是要住得舒服、住得順心!
叡研設計在高雄深耕很久了,我們就像您值得信賴的在地朋友。如果您也正在尋覓一位能懂你的生活、能幫你解決空間難題,並且專業到讓你放一百個心的設計夥伴,請別猶豫了!
來跟我們聊聊吧!無論是老屋翻新,還是像蔡公館一樣的換屋新生活,我們都希望能成為那個為你打造夢想家的「對的人」。
直接加我們的 LINE 聊聊,預約設計師初談👉 [叡研官方LINE ]
期待與您一起,把家變成你最喜歡的樣子!
