
案場小檔案
名稱:簡約機能宅
風格:現代簡約
屋況:老屋翻新
坪數: 12坪(室內空間)
格局:二房一廳一衛
家庭成員:
兩大一小 中學生
工程預算:200萬

愛河畔的老屋挑戰 — 12坪的空間如何乘載一家人的理想生活?
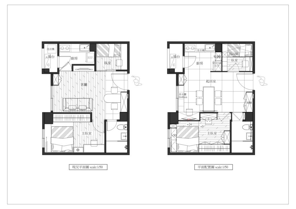
面對極度有限的 12坪室內空間,設計師的首要考量,是如何透過斷捨離、重新調整動線,並將散落的生活痕跡完美整合。我們的設計概念,是讓這個現代簡約的小宅,在保有家人各自獨立空間的同時,在假日裡也能擁有一個充滿安定感、能夠聚集多人的核心生活區域,這是一場對高坪效的極致挑戰。
這期案例「天河‧機能宅」位於高雄愛河畔,高樓層的居住空間擁有得天獨厚的陽光,但它也是一個亟需改造的12坪老屋翻新案。屋主家庭成員為兩大一小(中學生),有著特殊的「衛星式」生活節奏:平日於外地工作,只有在週末假期才會全員歸隊。


12坪公領域的哲學:捨棄沙發,重塑家的核心安定感
在小坪數改造中,每一步取捨都至關重要。我們發現,一家三口在家的時間集中於週末,與其讓巨大的沙發佔據公領域,不如將空間賦予多功能性。
刪除沙發換大桌:12坪的彈性佈局與生活核心
設計師大膽刪除了傳統沙發,取而代之的是一張活動式大餐桌。平日,這張桌子可靠著電視牆邊,將空間開闊感放到最大;當週末或親朋好友來訪時,則可輕鬆拉出,舒適地容納多人用餐與互動。這種簡約機能宅的設計,使客廳的核心價值從「看電視」轉變為「家庭情感交流」。
同時,我們將廚房與客廳整合規劃,不只動線更加流暢,開放式廚房的設計也進一步提高了整體使用的開闊感。在整體色彩上,我們提高明度,讓12坪空間的視覺感得以擴大。


垂直收納與格局微調:小坪數收納的最大化秘技
在這個家,設計師沒有浪費任何一公分的空間。為了實現屋主「大量收納空間」的訴求,我們充分利用垂直與畸零角,讓每個臥室都擁有獨立的生活模式。
主臥室收納機能極致化:訂製床架與隱藏門巧思
主臥室與電視牆位於同一面,為了讓小空間的視覺不被切割,我們特別利用隱藏門方式將主臥門整合,營造出整體舒服的視覺效果。


更重要的是收納機能:我們將床架特別訂製到最底,床下方擁有最大化的收納空間,可輕鬆收納寢具與冬被。景觀窗戶旁也搭上台度設計,巧妙地創造出床邊櫃及額外的收納,確保以往雜亂的生活能夠再度被整合。




小孩房垂直空間魔法:上下鋪滿足獨立生活需求
針對中學生成員,我們採用上下鋪設計,巧妙地把衣物櫃做成開放式收納,整合在床的下方。透過向上向下的垂直空間利用,不犧牲任何功能需求,讓孩子在自己的房間內還能擁有獨立書桌。這個二房一廳的佈局,真正實現了麻雀雖小,五臟六腑卻極為舒適齊全的設計概念。


告別老屋痛點:無窗衛浴的舒適度逆襲
老宅裡很難兼顧的,就是沒有陽光的衛浴空間。以往在這樣封閉的環境裡沐浴,總讓人有不能放鬆的緊繃感。
微調格局爭取喘息:衛浴外順手收納區的創造
設計師在重新隔間之初,就將衛浴舒適度納入考量。我們利用微調動線,在進入衛浴前的空間,多爭取了一個生活備品收納層板櫃。這個設計巧妙地與浴室外空間拉開距離,創造出一個不壓迫的緩衝動線,是小空間裡珍貴的「小喘息」。此外,搭配精心挑選的色彩,也有效地擴大了衛浴的空間感,讓一天的疲憊得以被重啟。


結語:你的小宅潛力,超乎你的想像!
「天河」案完美證明了,即使是 12坪老屋,也能透過專業的設計巧思,實現高坪效、機能最大化,並滿足一家三口各自獨立又共同生活的雙重需求。我們用設計重新定義了居住空間的使用,讓每一分預算都花在刀口上。
如果您也正面臨小坪數收納、老屋翻新或空間不足的困擾,不要輕易妥協!叡研設計專精於小坪數改造,讓我們用專業的佈局規劃,為您的家爭取到最大的使用價值。
立即加入 LINE@ 預約諮詢,讓你的小宅發揮最大坪效! [叡研設計 LINE@ ]



